
VW MKIV Climatronic
Fan Repair BY UK-MKIVs.net’s
BigAl
http://website.lineone.net/~alan.james.lorely/fan%20mod/Repair.html
This fan repair modification was developed for a 2002 model
V5 Golf, it will probably be OK for other Golf models especially the V6.
It is intended for use when the low speed resistors inside
the fans have failed, leaving the high speed mode working.
I would guess that mounting holes, etc. may need adjustment
depending on model, check dimensions before starting.
This quick guide is intended for those with some electrical
wiring experience.
(1) Purchase 2 off 1ohm 100W aluminum clad resistors RS part
number 188-087 or Farnell part number 652-453 (available HERE
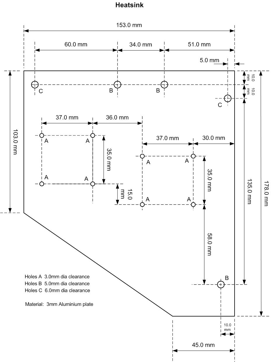
(2) Manufacture heatsink to attached drawing, not forgetting
to check hole positions etc first.
(3) Smear heatsink compound over back of the resistors and
fix resistors to heatsink using M3.5 screws and nuts.
(4) Solder approx 30 inches of wire to each resistor
termination and cover the bare termination with heatshrink to provide some
protect against the elements and accidental shorts. The wire has to carry
approx 7.5A and I used some 1.5mm² wire I had lying around.
(5)
(6) Cut red/white wire to large fan on fan side of connector
(accessible from underneath by LH back of radiator), join red/white wire
leading back to connector to one side of a resistor. I used standard insulated
spade connectors to do this.
(7) Splice the other wire from the resistor to the red/black
wire on fan side of the connector. I used a 30A terminal block ("chocolate
block") for this.
(8) Repeat (6) and (7) for the smaller fan with the other
resistor.
(9) Make sure wiring from resistors to fan wiring is
protected and secured where necessary to prevent chafing.
(10) Job done. Test fans by putting air-con on. Be careful
if touching the heatsink because it runs at approx 100degC when the car is
stationary and the engine running.
Finally, feel free to modify these files and or redistribute
them. All information is given in good faith but not guaranteed as to accuracy
for any particular car.